OTSIN TÖÖD/PAKUN TÖÖD
OT: Köögimööbli joonised/projektid
PAKUN TEENUST, PROJEKTIMÜÜK
Köögimööbli projekteerimine 2D 3D ja disain
Töötan välja köögimööbliprojekti ideest projektini,
lähtudes köögi mõõtudest, ruumi eripärast ning kliendi soovist, võttes arvesse tänapäeva trende ja võimalusi optimaalseks majandamiseks köögis
Millest alustada?
* Projekti koostamiseks on vaja ruumi mõõte, kuhu märgitud elektripistikute, vesi/äravool, ventilatsiooni jm asukoht. Või korteri-majaplaan.
* Kui omate ettekujutust oma tulevasest köögist, siis sellest lähtuvalt joonestan ülesse köögiprojekti täpsete mõõtudega
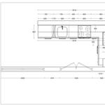
Terviklik köögiprojekt sisaldab:
* Plaan 2D 3D
* Värvi ja materjalilahendus läbi disainikohvri (st materjali ja värvinäidiste).
Pakun ka osalist lahendust
Projekt teostub koostöös kliendi ja disaineriga
Näidisprojektid saadan emailile
Hind: al 12 eur/leht
Info/kontakt kadrimee@gmail.com
