KÜSI NÕU SISEKUJUNDAJALT
elutuba-söögituba-köök
Tere!
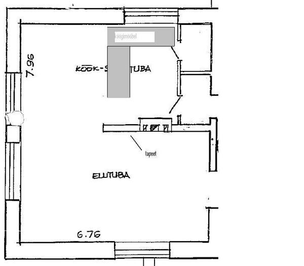
Plaan ühele suurele toale majas uus välimus anda - üheskoos siis söögituba, suur tuba ja köök. Lisasin ka väikse pildi. Aknad tulevad plastikust, seest valged. Olemas on männipõrand, mis tahaks lihvimist ja... esimene küsimus ongi mis värvi võiks olla põrand? Mõttes on töödelda põrandat heleda (valge) Pinotex Interioriga ning katta see omakorda lakiga. Seinad teeks ka heledad ... v.a üks sein mis on joonise peale märgitud - tapeet. Mis tooni tapeeti võiks kasutada? Tume- hele? Laed on nagunii valged. Ehk saab kõik liiga hele - tekib nö haiglaefekt? Köögimööbel tuleks ka hele, aga töötasapinna tahaks tumedamast puidust teha. Mis ustega võiks ette võtta? samuti valged - või mõnda muud tooni? Keeruline... palun abi. Mõnda mõtet, mis aitaks edasi liikuda. Aitäh
Tere,
Kuna tegu siiski avatud ruumiga, mängivad rolli kõik detailid. Küsikski, kas Teil mingid elemendid on ka juba olemas, mida plaanite kajastada või on kõik lahtine? Mis stiili soovite kajastada? Millised on uksed?
Tervitades,
Helen
Tere taas!
Ütleme nii, et olukord on suhteliselt lahtine ja mänguruumi on lõpmatult palju. Olemas on 3+2 diivan riidest kattega beezi värvi. Seda esialgu plaan välja vahetada ei ole. Ülejäänud mööbel mis on, läheb väljavahetamisele. Stiili osas jääks pigem modernseks kuid mitte ultramodernseks - st stiil peaks olema hubane. Uksed - nagu ma ka kirjutasin lähevad vahetusse. Ei ole tavalise valge ukse pooldaja, mistõttu teeks uksed ehk teist tooni - puidukarva?
Tere,
Uksed võiks haakuda, kas põranda või siis muu mööbliga. Kaldun arvama, et mööbliga haakuma panna oleks parem.
Mööbli puhul võite kombineerida siis tumedat- heledat, ülemine kappide osa on vist suht olematu, kuna aken jääb ette, teisele osale annaks panna siis nt torudega toetamaks. Võite ju osad sahtlite/uste esipaneelid teha ka tumedad, siis ei ole kõik nii hele.
Samas kui otsustate siiski heleda köögimööbli kasuks ja tasapind tume, siis tasakaalustage seda nt söögilaua toolidega, ühtlasi võite vaipkattega/aknakatetega/dekoratsiooniga mängida. Valgustid täidavad samuti oma osa.
Kui mingi seina osa tundub siiski liiga lage või heledus häirib, lisage sinna mingi pilt- see täidab kohe tühjuse. Aga see on rohkem nö i-le täpi panemine.
Tapeet valige nüüd selle järgi, kui palju midagi ruumis on ja, mis puudu tundub olevat. Seal võiks olla siiski mingi muster vms. Siin saab nüüd omavahel haakuma panna aknakatteid sellega, kas siis mustri näol või hoopiski tooni. Ega see, et ülejäänud seinad on heledad, ei tähenda, et see 1 sein peaks olema tingimata tume. Pigem sõltub, mida tahetakse esile tuua. Teinekord annab muster või tekstuur palju parema efekti kui toon. Akende osa on see, mis ruume omavahel suurelt ühendab.
Edu soovides,
Helen
Tere,
Võibolla sobiks teile Inglisestiilis köök.Vaadake meie kodulehte www.Renivol.ee võibolla leiate midagi huvitavat.Alati oleme valmis aitama.
Edu
Rene
