KÜSI NÕU SISEKUJUNDAJALT
arvutitoa värvitoonid?
Niisiis,alustaksin algusest.Suure toa värvid on tumehall,valge ja heleroheline.Edasi on koridor-oranz ja vähe kollakat.Magamistuba punakad toonid.Ja nüüd arvutituba.Saatsin ka pildi.Tuba on väike.Pool toast sooviks teha arvutitoaks ja pool jääks lastetoaks.Ei oska nüüd kuidagi välja mõelda, et mis toonid sobiksid sinna ja kuidas-kuhu värve panna.Sooviks nõu kardinatest kuni seinavärvideni,kõike head mida teil pakkuda on.Laps on poiss 5a.
Tere,
Mis toonis on põrand? Mööbel? Suur ruum on? Diivani toon? Nagu ma aru saan, siis laps ei maga selles toas?!
Helen
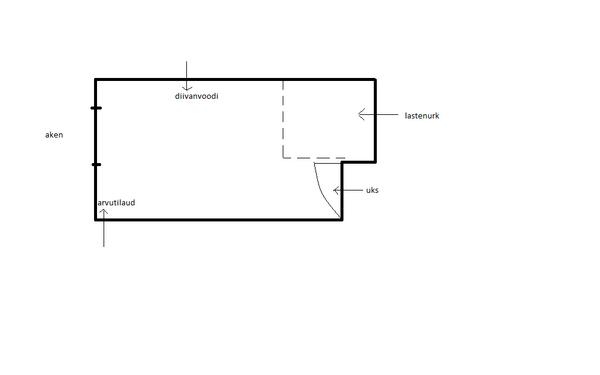
Laps magab ikka seal toas diivanvoodi peal.Tuba on tühi pole veel midagi ostnud,sest ei oska valida värve sinna tuppa.Põrand tuleks vaipkattega ja tumadam kui seinad.Oleks kaks valikut endal.Kas sinine või kollane.Aga ei tea seda kuidas sellised värvitoonid mõjutavad arvutitööd ja lapsele mängimiseks.Värve pole seal toas veel üldse,aind pahteldatud kipssein.
Tere,
Eks lapsed on ka erinevad. Kindlasti tasuks ka tema soovidega arvestada, millist tuba siis Tema eelistaks(värvid jms)
1. Tapeeti osaliselt kasutada/ maalingud seinal
2. 2 toonis kombineerida seinasid
3. Aksessuaaridega, elementidega ja detailidega siis tuua värvi rohkem sisse, üldmulje aga tagasihoidlikum
Riiuleid oleks ka siiski ilmselt vaja, kuhu siis raamatuid,kaustasid jms panna. Laste poolele võite riiuli alla lisaks kastid lasta teha, mida saab siis riiulisse lükata. kastid võivad olla siis värvikamad(sinised nt). ühtlasi laua sahtlite esipaneelid nt, diivanipadjad kollase sinisega, aknakattega saate samuti seda sisse tuua, tool jms. Vaipkate võib nt mustriga olla, mitte 1 värvis- tekitab juba väga hea efekti.
Kuna ruum pole väga suur, siis tervele seinale ei soovitaks sinist- liiga suures ulatuses tuleks seda ja kui põrand on ka tumedam, siis visuaalselt muudab see ruumi veel väiksemaks, samuti võib see toon ka väsitada ning väga massiivselt mõjuda. Üldmulje hoiaks pigem võimalikult õhulise, seda nii toonide kui ka elementide näol. Osalise tapeedi kasutamine, kas siis 1 seinas või ainult mõne paani näol, annab samuti võimaluse sinist natuke sisse tuua (mingisugune muster- geomeetrilised kujundid nt, mis on 2 toonis).
Sõltub ka, mis materjale üldse kasutada (mööbel, aknakate, diivanikate, vaipkate)- need võiks ka õhulisemad olla, mitte väga massiivsed. Mööbli puhul siis jälgida ka materjali paksust, mis võiks jääda sinna 20mm kanti. Vineeri puhul nt on ka see huvitav triibuline serv, mis juba lisab aktsenti. Võib ka valida alpi spoonidest midagi, kui tahta mööbliga just aktsenti anda.
Kui nüüd valite seina pindadele 2 tooni, siis jälgige ka mööbli paigutust ruumis. Kui palju seina pinda üldse näha on jne.
Kui nüüd kasutada mustreid nt tekstiilis ja tapeedis, siis jälgida, et need omavahel ka haakuksid- et temaatika oleks sama ikka.
Toonidest võite kaaluda: kollane, pruun, beez, sinine, roheline( seda võib kollasega kombineerida nt), hele, valge, hallikas. Raamatud riiulis ja igasugused mängusasjad lisavad juba ka omaltpoolt värve omajagu. Hallika tooniga ja heledusega on hea võimalus tasakaalustada nt.
Diivani võib ka 2 toonis valida või siis mustriga katte vms.
Eks neid variante ole palju, peate lihtsalt omaltpoolt otsustama, millega siis seda värvi tuua ja kus ja, milline variant siis ideeliselt Teile kõige vastuvõetavam on. Ja valgustusele pöörake ka tähelepanu.
Kui miski jäi segaseks vms, andke julgelt teada....
Edu soovides,
Helen
