KÜSI NÕU FENG SHUI SPETSIALISTILT
Majaplaanil puuduv nurk
Tere!
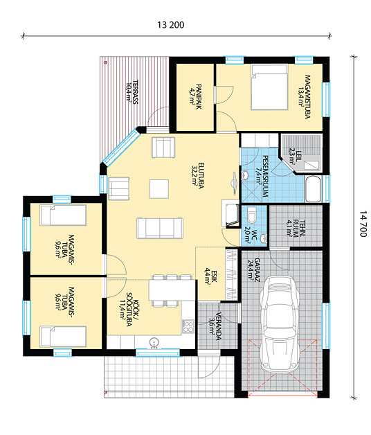
Tegeleme majaprojekti valikuga. Üks väga meeldiv variant on planeeringu osas, aga puuduva "nurgaga": pilti näeb siit: http://www.upload.ee/image/1474375/Majaplaa.jpg . Puudu on justkui nö. varanduse nurk. Kui suureks probleemiks see antud projekti puhul on (ehk on veel midagi väga negatiivset) ja kuidas peaks majaplaani edasi valima- peaksin ruudukujulise maja otsima:)? Äkki kui viia terrass edasi nii kaugele, et maja oleks ruudu kujuline ja "täiustada" sealset nurka sobiva atribuutikaga. Mõtteliselt on ka terass ju siiski maja osa. Pilt on ilmakaarte suunas nagu maja asetseks krundil- sissepääs lõunas.
Tänan väga juba ette vastuse eest!
Täpsustan, et sissepääs ei asu lõunas vaid maja alumine vasak nurk lõunas- ehk siis pildil kõige alumine magamistuba.
Täpsustan veel
Viimaste päevade jooksul oleme siiski otsustanud et terassi on kindalti suuremat vaja. Ehk siis venitakski hea meelega terassi nii pikaks, et moodustuks "ruut". See venitatav osa ei tule katuse alla nagu hetkel plaanil nähtav terassi osa. Siiski oleks see ju maja osa ja maja plaani ise oleks justkui puuduva nurgata. Aga kuidas mõjutab energia "ringlust" siis see, et üks nurk jääb seinteta ja osaliselt ka katuseta.
Tere!
Maja neljakandiliseks venitamine on hea mõte. Ei ole vahet, kas seinu ja katust on - põhjapind toetab tasakaalu. Miks on magamisruumidel mitu akent? Näiteks lastetoas, kus ruutmeetreid on 9,6 on kaks akent - see teeb toa liiga yangiks (aktiivseks) ja on raskusi magamiskoha planeerimisega. Samuti magamistoast (tagumisest toast) on tehtud kiire energiaga ruum, mis ei soodusta välja puhkamist. Puhketubades piisab täiesti ühest korralikust aknast.
Tervitades,
Siret Seeder
Tegelikult oli plaan aknad üheni viia ja nii et toetaks voodi paigutamist- et ei oleks aknaga samas seinas ja oleks vaade uksele kuid nii et uks ei jookseks voodisse. Tegemist on tüüpprojekti plaaniga, kus endale ka akende liigne hulk ei sobinud. Täname vastuse eest! Planeerime maja neljakandilise põhiplaaniga 
